This plan is a development of the Core Sound series. It was inspired by the number of queries and requests we got for “a cuddy or cabin” for the Core Sound designs. Requests from around the world, were based on the needs to shelter from both the hot sun of the tropics and the cold winds and spray of the northern climes.
The hull shape and general appearance are closely related to the flavor of the Core Sounds models.
Performance is based on the well-known sailing qualities of the Core Sound.
Safety was a primary concern when the design was conceived. The boat carries floatation in the forefoot and under the cockpit, so she will float when filled with water. The standard configuration gives positive righting to 80 degrees with two crew on board. As with some of our other designs, we are offering the plan with a variable ballast option. You can choose the ballast/draft/ weight ratio which is best for your sailing style and location.
The standard draft is shallow enough to allow the full backwater gunkholing experience. With the board down, her draft and ballast allows you to take on the more open waters with confidence. She is named, Belhaven, after the historic town of that name, located on the Pungo River – a well known place for the wind and waves to kick up and kick in.
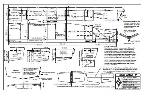
The gentle keel shape, with shallow draft and light weight, will make the boat easy to tow without having to purchase a large SUV. Launching and retrieving can be accomplished from a standard type of trailer. The centerboard is offset to port. This allows a completely open interior.
A further innovation on this design, a new idea, and one we don’t think you will find anywhere else is the keel/centerboard/fin configuration. When in the full “up” position, the centerboard sits in-line with the keel draft rather than being fully retracted into the hull. To starboard of the centerboard is a small bilge keel fin which is also the same draft as the keel. This combination “tri-pod” (three- footed) configuration offers two essential advantages. First, not only can you launch in shallow water, but you can sail to windward in shallow water – without having to lower the board. This is something you simply cannot do in a keelless flat bottom boat. You can launch a flattie in the shallows, but then you are “out of control” until you can get out far enough to get some of that board down. You are dependent on a motor or some other form of propulsion. With this configuration you can sail right off and on to the launching ramp, beach or dock. You can come and go without help regardless of the wind condition.



Secondly, the tri-pod will make a nice level stand for your boat be it on the beach, in your yard, or on the trailer
The interior is cozy and decidedly comfy in view of the size of the boat. It is enough interior to get out of the weather and camp in reasonable comfort for a family of 3-4 (if two are young children). There are three full length settee/berths a small efficient galley a space for a small porta-potti. The forward V- berth is 6’4″ 1.93m and may be used as two singles or a double with filler cushion , the pilot berth is 6′ 6″ 1.98m. There is about 4′ 7″ 1.39m headroom in the salon cabin – adequate for sensible sitting headroom for normal height people. The galley is located under the offset companionway hatch, so you can stand up while cooking. Although this is absolutely not offered as a round-the-world, live-aboard interior, you will find a most gracious and inviting space for a boat well under 20′ with performance, shallow draft capabilities.
The cockpit offers a comfortable sailing and lounging environment. The seats are 6″ 9″ 2.06m long to allow for sleeping out under the stars. The mizzen is set high enough to set up a bimini underneath – to protect you from the sun in hot climates or for those sensitive to the solar rays. The cockpit is self-draining. There is no cockpit motor well. Because of it’s size, we don’t want to rob cockpit space. For those who need an outboard (up to 6 HP), it may be transom hung. There are two generous cockpit lockers for stowage. While underway, a modern compact outboard will easily stow in one of these, or the outboard can ride on it’s bracket on the transom.
The boat sports the cat ketch rig like the Core Sound. As we have stated the virtues of this rig elsewhere on this site, suffice to say to our new visitors that this is the relaxed way to sail. No hard work on tacking, no wild jibes, complete downwind control and yet great performance. The two shorter masts make trailering and set up easier. The boat was conceived from the beginning as being available with a sloop rig…for those who feel that they need it. Why a cat ketch?
The construction is stitch and glue marine plywood utilizing our own B&B “butterfly” method, which greatly simplifies hull assembly. There is no lofting, no jig building, no pattern working required. Measurements (just straight line measurements) are simply transferred directly onto the plywood and cut out. Even an inexperienced builder can make a nice job of this boat.
| A new design from B&B:LOA………..19′ 0″ 5.79mLWL………..17′ 6″ 5.33m
BEAM…….. 7′ 0″ 2.13m DRAFT.. 9″ – 3′ 9″ .23m -1.15m SAIL AREA 164 sq. ft. 15.24sq. m working sail including roach BOAT WEIGHT…1100# +/- 500 kg (ballast variable 300# 136kg as drawn) DISPLACEMENT 1500 lbs @ DWL Disp./L 135 — SA/Disp 20 – Cp .55 – LCB .54 of WL aft – PPI 394 |
![]() |



|
![]() |


